ZANE GREY TERRACE

Location: Altadena CA

3000 Square Foot Single Family Home

Status: In Permitting 2025

At Zane Grey Terrace, we embarked on a transformative journey to reconstruct a residence imbued with resilience and a renewed sense of community following the tragic Eaton fire of 2025. Our clients, a warmly engaging older couple nearing retirement, envisioned a haven that pays homage to tradition while seamlessly integrating with the breathtaking landscape of Altadena, California.

Positioned on a steeply sloped site within a designated wildfire zone, the challenge was to create a sophisticated yet warm environment. The couple sought a home conducive to leisurely living, where they could age gracefully—a space that invites family gatherings and offers their grandchildren the enchanting experience of sleeping under the stars on an expansive rooftop deck, perfect for summer movie nights.

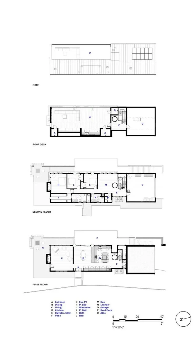
The design aesthetic of the Hillside Barn House reflects a contemporary interpretation of traditional barn-style architecture. Clad in durable metal, the structure features a sloped roof that softly encompasses a hidden rooftop retreat. Intelligent engineering showcases a comprehensive retaining wall alongside a cantilevered patio that ensures structural integrity, enhancing both safety and visual connection to the surrounding landscape.

Large glass apertures on the western façade not only frame the breathtaking valley views but also dissolve the boundaries between indoor comfort and nature’s immensity. This deliberate design choice fosters an ambient relationship with the environment, providing ample natural light and inviting the vibrant outdoor landscape into daily life.

Every detail of this home has been meticulously considered, prioritizing safety and sustainability. The implementation of fire-resistant materials coupled with integrated fire protection systems serves to fortify the residence, ensuring its resilience against future adversities.

Furthermore, the vertical elevator and stair core connect three levels of living space, allowing our clients to navigate their sanctuary with ease as they age. This thoughtful approach secures their ability to continue hosting family and friends, nourishing their cherished connections and nurturing community.

Hillside Barn House stands as a living testament to resilience, connection, and the profound beauty of intentional design, celebrating the enduring spirit of its inhabitants and the breathtaking landscape that cradles it.

Previous
Previous

Rialto Ave.

Next
Next

Moore Street